Prodej, ateliér/studio, Pardubice - Nemošice, 1+kk, 37m2, terasa 23m2, odpočet DPH

Popis nemovitosti

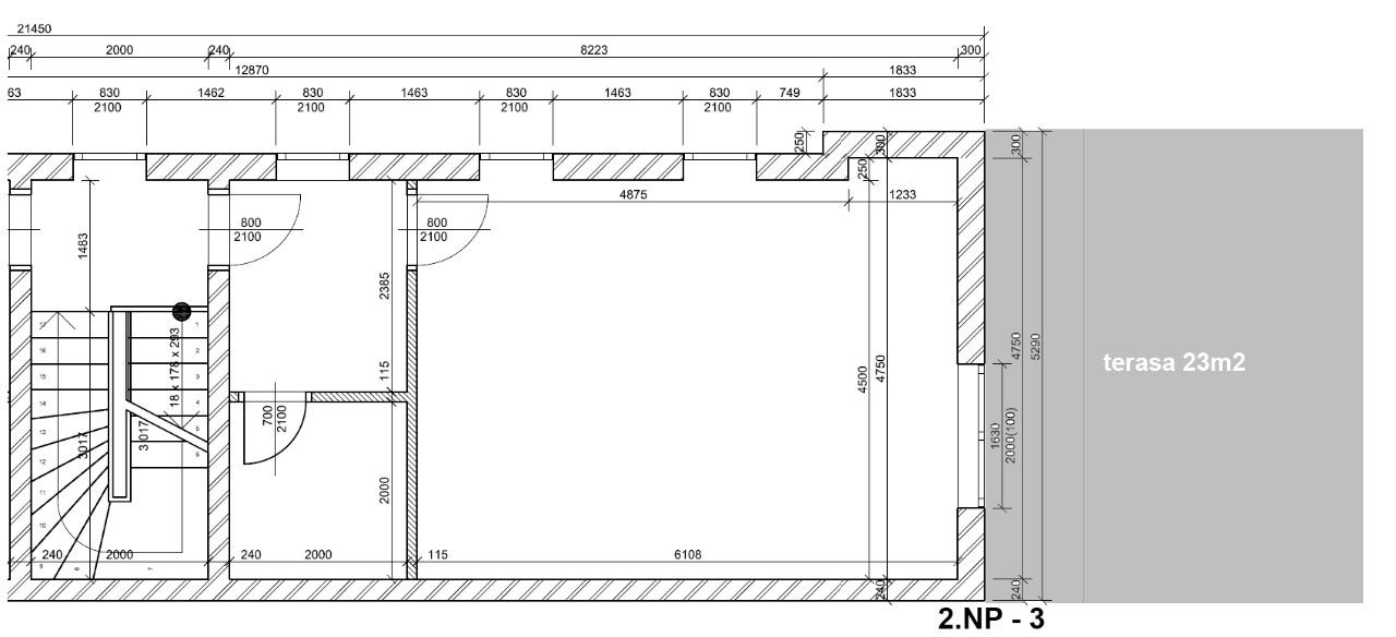
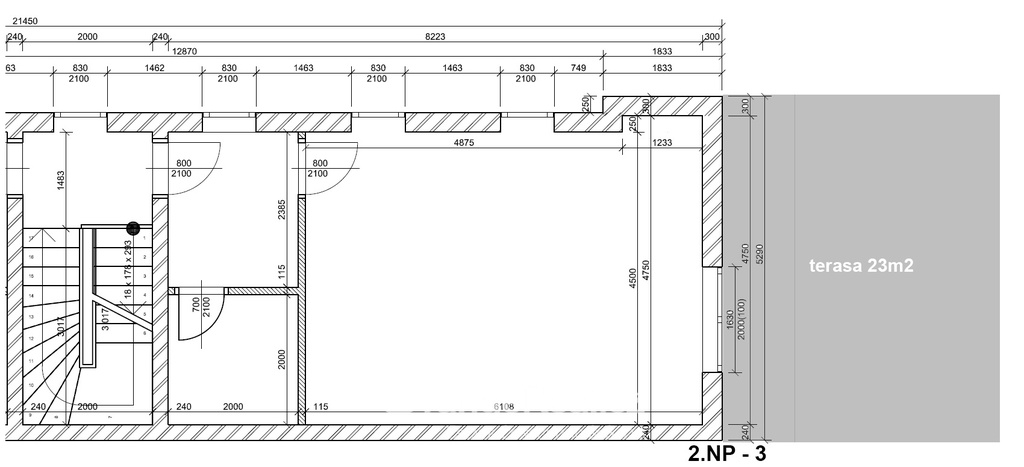
Výhradně nabízíme k prodeji jednotku 1+kk o podlahové ploše 37,4m2 + terasa 23m2 + vyhrazené parkovací místo, v městské části Nemošice, obec Pardubice. Jednotka ve zděné novostavbě (Porotherm 30 + 200mm EPS) z r. 2020, kolaudována jako nebytový prostor (studio/ateliér) – možnost odpočtu DPH 21% pro plátce. Jednotka se nachází ve 2. NP, orientace SV, dispozice - vstupní chodba, koupelna s toaletou, sprchovým koutem a přípravou na pračku, dále hlavní místnost s kuchyňskou linkou (var. deska, trouba, digestoř s přípravou na vnější odtah), z místnosti výstup na velkou terasu s přípravou na montáž markýzy. Vytápění ele. kotlem Bosch s rozvodem do teplovodního podlahového topení + samostatný otopný ele. žebřík v koupelně, provedena příprava na klimatizaci, před všemi okny příprava na předokenní rolety s ele. ovládáním. Podlahové krytiny - lepený vinil a keramická dlažba. Klidné místo na okraji obce s výbornou dostupností do centra města, MHD, školka, COOP, restaurace, sportovní hřiště, aj. Doplňující informace u obchodníka společnosti.
Cena: Na vyžádání
Prodej
Aktivní

Typ objektu: Byt
Dispozice: 1+kk
Stav: Novostavba
Užitná plocha: 37 m2
Vlastnictví: Osobní
Evidenční číslo: 212_MS_N
Stavební prvek: Cihla
Terasa: Ano
Voda: Vodovod
Parkovací stání: 1
Zobrazit více položek

Kontakt na obchodníka

Kontaktní formulář