Prodej, byt, Pardubice, 3+kk, 101m2, Nám. Čs. Legií

Popis nemovitosti

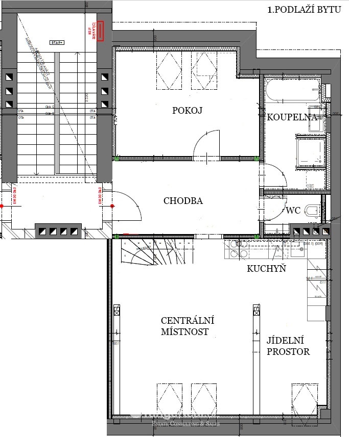
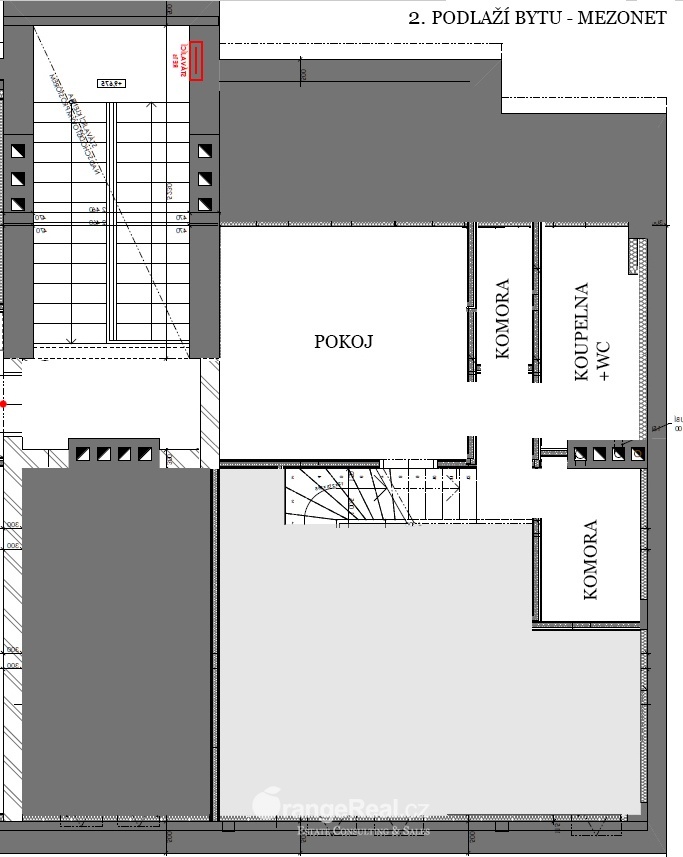
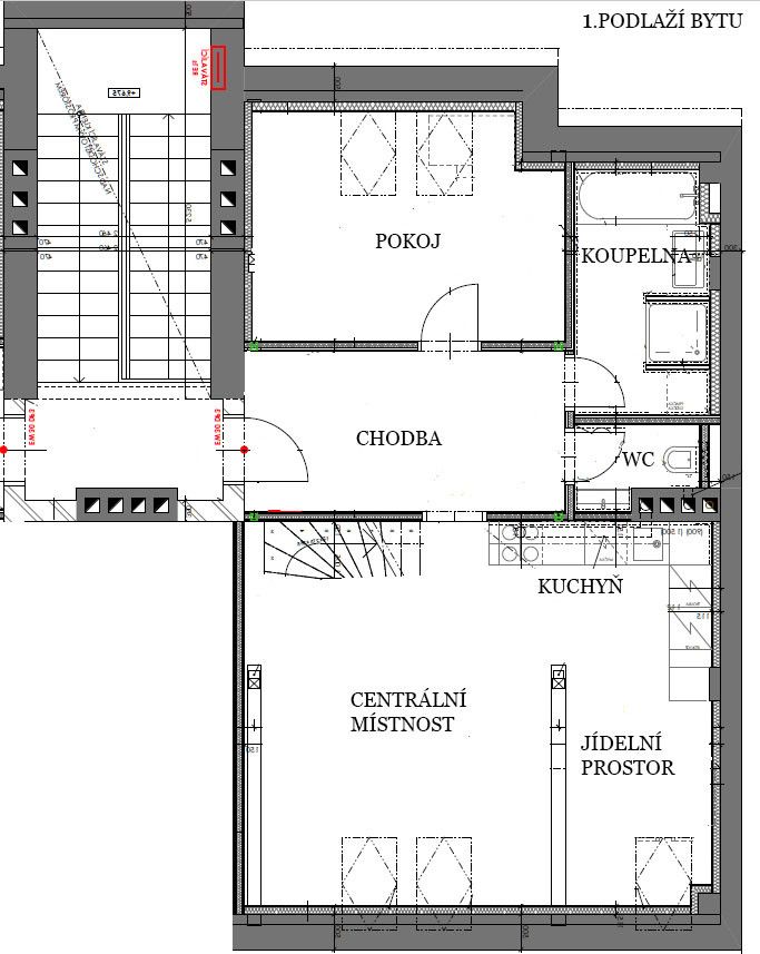
Výhradně nabízíme k prodeji novostavbu (energ. tř. B) nadstandardního mezonetového bytu dispozičně 3+kk, o ploše 101m2, v bonitní a vyhledávané lokalitě Pardubice – Náměstí Čs. Legií, umístěného ve III. patře zděného domu, pořízení výtahu v řešení SVJ. Byt zkolaudován, připraven k nastěhování (novostavba - kupující nehradí daň z nabytí). Byt sestává z prostorově velkorysé vstupní chodby, koupelny disponující vanou i sprchovým koutem, samostatné toalety, dvou samostatných neprůchozích pokojů, centrální místnosti, kde se nachází kuchyňské zázemí a jídelní a obývací prostor, z něhož vede schodiště do II. NP bytu. Zde je umístěn jeden z  pokojů, koupelna s toaletou a 2x úložná komora. Byt je orientován na jih a sever. Při výstavbě byl kladen důraz na kvalitu použitých materiálů. Ohřev vody elektrickým kotlem se zásobníkem. Vytápění zajišťují podlahové elektrické rohože Fénix s možností regulace teploty v každé místnosti samostatně. Podlahové rohože jsou položeny po celé podlahové ploše bytu. Dveře Sapeli, okna Velux, obklady keramika, podlahy plovoucí, v koupelnách a na toaletách dlažba. V bytě je instalována kompletní příprava na osazení klimatizačních jednotek a EZS. K bytu dále přináleží sklep v I. PP domu a vlastní podíl na průchozí zahradě před domem. Dům je umístěn ve vnitrobloku, čímž majitelům tohoto bytu zajišťuje maximální soukromí, klid a bezpečí v kombinaci s bydlením v přímém centru města Pardubice. Za domem se nachází udržovaná společná zahrada o výměře 400m2. Dům je průběžně revitalizován – nová střecha 2017, nové rozvody vody a odpadů, nová vodovodní přípojka. Vzhledem k umístění bytu v samém centru města je veškerá občanská vybavenost – MŠ, ZŠ, VŠ, poliklinika, obchodní centrum AFI-Atrium, včetně vlak a BUS nádraží a zastávek MHD v docházkové vzdálenosti. Výborná dostupnost všech ostatních částí města, i nájezdu na D11. Parkování před domem na rezidenční karty. Doplňující informace u obchodníka společnosti. Doporučujeme navštívit virtuální prohlídku bytu na stránkách naší společnosti.
Cena: Na vyžádání
Prodej
Zrealizováno

Typ objektu: Byt
Dispozice: 3+kk
Stav: Novostavba
Užitná plocha: 101 m2
Vlastnictví: Osobní
Postaveno: 2018
Evidenční číslo: 00155
Stavební prvek: Cihla
Topení: Ústřední elektrické
Voda: Vodovod
Energetická náročnost: B
Zobrazit více položek

Kontakt na obchodníka

Kontaktní formulář